Strzałka
  • Powierzchnia

    Metraż 247.65 m2

  • Powierzchnia

    Piętro Parter

  • Powierzchnia

    Rok budowy 2024

  • Powierzchnia

    Typ transakcji Wynajem

  • Powierzchnia

    Numer oferty 10432658

19 564,00 zł 79,00 zł/m2

Nowoczesny lokal w Śródmieściu!

Lokalizacja Gdańsk, ul. Łąkowa


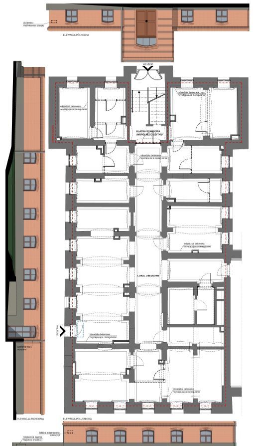
Na wynajem lokal usługowy – 247,65 m² – Gdańsk, ul. Łąkowa 59.

Na wynajem lokal usługowy o łącznej powierzchni 247,65 m², zlokalizowany na parterze odrestaurowanego, historycznego budynku monumentalnych koszar wojskowych. Przestrzeń łączy w sobie nowoczesność z klasycznym charakterem – przeszklona, nowoczesna część harmonijnie współgra z zabytkową architekturą gmachu, tworząc unikalny klimat. Lokal znajduje się w prestiżowej lokalizacji, w bezpośrednim sąsiedztwie nowoczesnych apartamentowców, co podkreśla jego wyjątkowość i atrakcyjność.

Opis nieruchomości:

Łączna powierzchnia: 247,65 m²
Lokalizacja: Gdańsk, ul. Łąkowa 59, Śródmieście
Umowa najmu: do uzgodnienia
Czynsz najmu: 79 PLN/m² netto miesięcznie. Dodatkowo najemca pokrywa koszty eksploatacyjne
Miejsce postojowe: dostępne w hali garażowej
Wejście: drzwi dwuskrzydłowe od strony ul. Sadowej oraz od strony północnej na klatkę schodową
Rok budowy: 2024 r.
Komunikacja miejska: obok znajdują się przystanki autobusowe oraz tramwajowe „Akademia Muzyczna”.

Zapraszam do kontaktu z Patrycją pod nr tel. 608 336 322 lub skorzystanie z formularza kontaktowego w celu uzyskania dodatkowych informacji lub umówienia się na prezentację lokalu.

W ofercie podano cenę netto.

**Oferta ma charakter informacyjny i nie stanowi oferty handlowej w rozumieniu Art. 66 par. 1 Kodeksu Cywilnego.**

Numer oferty
10432658

Zobacz również

Lines

Skontaktuj się z namii zyskaj zaufanego partnera

Wypełnij formularz a My odddzwonimy.