Strzałka
  • Powierzchnia

    Metraż 510.89 m2

  • Powierzchnia

    Piętro Parter

  • Powierzchnia

    Rok budowy 2024

  • Powierzchnia

    Typ transakcji Wynajem

  • Powierzchnia

    Numer oferty 9425471

14 049,50 € 27,50 €/m2

Lokal z antresolą – Bezpośrednio od właściciela!

Lokalizacja Warszawa, ul. Mińska


Parterowy lokal użytkowy na wynajem zlokalizowany w fantastycznym miejscu w przepięknej inwestycji SOHO na Pradze-Południe w Warszawie.

NIE POBIERAMY WYNAGRODZENIA OD NAJEMCY

Parametry lokalu:
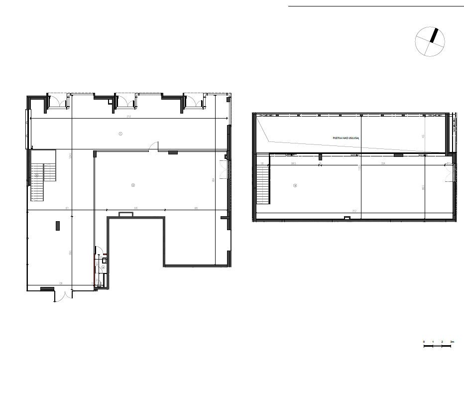
– Powierzchnia lokalu – 510,89 m2, w tym parter antresola 144.47 m2
– Lokal bardzo ustawny i wysoki, 
– Dostępny od zaraz
– możliwe wakacje czynszowe – do ustalenia

Lokalizacja:
w pobliżu planowanej stacji III linii metra Mińska
– bezpośrednie połączenie z lotniskiem Chopina
– w pobliżu Parku Skaryszewskiego
– doskonała komunikacja miejska (tramwaje, autobusy, metro).
– 900 mieszkań w inwestycji
w pobliżu prestiżowej restauracji Warszawa Wschodnia by Mateusz Gessler

Posiadamy w swojej ofercie więcej różnorodnych powierzchni w tej inwestycji – spytaj o szczegóły.

Bezpośrednio od właściciela!

W ogłoszeniu podano cenę netto. 

Jeżeli zainteresowała Państwa nasza oferta i macie dodatkowe pytania, prosimy o kontakt telefoniczny z Patrycją tel. 608 336 322.

*** Przedstawiona oferta ma charakter informacyjny i nie stanowi oferty handlowej w rozumieniu Art.66 par.1 Kodeksu Cywilnego*** .

Numer oferty
9425471

Zobacz również

Lines

Skontaktuj się z namii zyskaj zaufanego partnera

Wypełnij formularz a My odddzwonimy.